We have been looking for a new home for 12-18 months now, up on Saturday off to all the open houses and going to private inspections at other times, I'm sure you all know the drill. We just couldn't find something that ticked the majority of our boxes in the area we wanted.
We love the area we are in, we have great neigbours and everything is so close and convenient for us. We decided that we would look at knocking down and rebuilding. In Sept/Oct 2011 we spoke to a custom home builder and they convinced us that we would be better off renovating over knocking down and rebuilding. I had read on a number of places, none the least, homeone.com.au forums that depending on the extent of the renovations, on a cost per sqm basis renovating was often more expensive that rebuilding, but I just couldn't fathom that this would be the case for us. After a few conversations with the custom builder, we followed their advice and after working with them to come up with a design we loved, we got the quotation and it was just too far over any assemblance of what we thought was justifiable to spend on putting a new level on and renovating our existing level. We did some modifications which took things out of the renovations and reduced the price, however we did not get to a point where we thought what we were being asked to pay for what we were getting was value in our eyes.
This then lead us to seeking a comparative renovation quote and also looking back in the market for existing homes. We came close in January 2012 and put an offer in on a house. There were are few things not quite right with the house.
- it was further out than we had been looking and ideally wanted, not far further, but would mean further to travel for work and for school (it's a block walk now) and would have been a drive.
- it would have also needed some renovations/remodeling, not that the house was old, just that it was set up for dual living, which wasn't something we were after, so we would have had to remodel to make use of the space.
- it was a little smaller than what we were looking for.
Concurrently we were still looking at options for renovating and after having a long and informative conversation with another builder and after some more consideration ourselves, we went back to what our gut was originally telling us and we decided that knocking down and rebuilding is what we should do as this was going to get us exactly what we wanted in the area we love so much.
We had some meetings with the new builder who talked us through the process and his approach. We were very impressed and decided that we would at least get some concept plans drawn up and costed. So we met with a couple of home designers and chose the one we thought we could work with the best and in a timely fashion.
So began the design process which we foolishly thought would take 2 weeks, 4 week tops, as we already knew what we wanted and it would be a simple matter of the designer taking our ideas and putting the plans together. WRONG!! We gave the go ahead to start the design process at the beginning of February. We went through a number of iterations with the plans. We got some good advice from many people, some right here online and they helped with refining our plans till we got something which we were happy with to commit to turn into our new home. We finalised the concept plans and gave the go ahead for working drawings nearly 2 and a half months later in mid April. Much longer than we had anticipated!
Site Plan
As you can see we have an existing pool in the back yard which gives us our boundary to the rear for our building parcel, given that we do not want to lose any rear yard space. If you can read the original contours you will see that the block slopes east to west and falls approx 2m from the highest point to lowest. We intend to largely level the block to eliminate the current drainage issues we have.
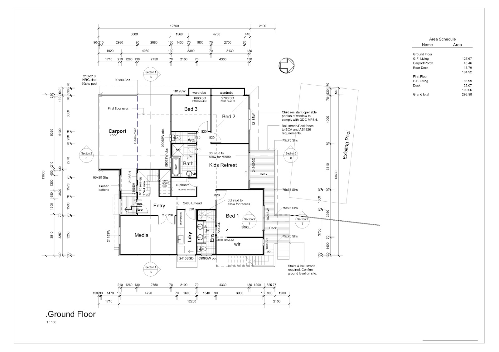
Ground Floor
The ground floor is our bedroom level..yes we are building an upside down plan house! Modest sized master suite, and bedrooms, nice sized kids retreat and media room, all about the right size for us. We didn't want space for the sake of space. Timber deck out the back leading onto to the pool area. We intend (funds permitting) to renovate the pool also by resurfacing it and adding a new coping and waterline tile.
First Floor
The top level is all open plan. It has kitchen with walk in pantry, meals and lounge which has a large tiled deck off it. There is also a Multi Purpose Room (MPR) which will be a study and upstairs rumpus room. Study nook and powder room tucked off to the side.
3D Elevations
We think the house has nice street appeal. We will use 2 types of cladding for upper and lower levels. There will be a timber skirt on the underside perimeter of the house finishing and closing off the underneath.




No comments:
Post a Comment